$3,000,000

27-31 Harwood Avenue S, Ajax, ON L1S 2B8

Central, Ajax,

| | 平方英尺 |

Properties with this icon are courtesy of TRREB.

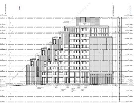
Being Sold by court appointed receiver Under Power Of Sale, "as-is, where-is" & Without Representation & Warranty. Vendor Financing Available. OPA/ZBA Approved. Final Stage Of Site Plan Approval. Mixed-Use Development Opportunity. 10 Storeys,131 Units & 123,229 GFA. Originally Designed As A Condo, This Site Would Excel As A Seniors Residence Or A Purpose-Built Apartment Complex, Benefiting From Reduced Development Charges. Located In An Established Residential Node, Just North Of Highway 401 & In Proximity To Go Station. Site Consists Of 2 Vacant 1-Storey Commercial Buildings & 1 Vacant Parcel Of Land That Can Be Readily Repositioned For Occupancy, Offering Near Term Cash Flow While Deferring Development/Construction. Municipal Address Includes 27, 29 & 31 Harwood Avenue S.

翻译

房屋信息
MLS®: E12611988
上盘公司 LENNARD COMMERCIAL REALTY
室内面积 1 平方英尺
土地面积 32700 平方英尺
最后更新 2025-12-09
物业属性 商业
挂盘价格 $3,000,000
单位价格 $3,000,000/平方英尺
地税额度 $41,719/年
更多信息
供水方式 Municipal
基建 Sanitary+Storm Available
详细描述
    位置和一般信息
  • HoldoverDays: 180
  • 房屋种类: Commercial
  • 房屋子类: Land
  • GarageType: None
  • 路线: East side of Harwood Ave S, South of Mandrake Street
  • 税收和 HOA 信息
  • 纳税年度: 2025
  • 停车
内部和外部特点
    内部特点
  • Cooling: No
  • HeatType: None
  • 外部特点
房屋
    公共服务
  • 下水道: Sanitary+Storm Available
  • 地产及评估
  • 建筑面积 (总): 0.75
  • 建筑面积单位: Acres
  • 地块信息
  • 地块号: 264520017
  • LotSizeUnits: Feet
  • LotDepth: 218
  • LotWidth: 150
  • Others
销售历史
地图与附近设施
地图
附近概况
公共交通 ({{ nearByFacilities.transits? nearByFacilities.transits.length:0 }})
购物中心 ({{ nearByFacilities.supermarkets? nearByFacilities.supermarkets.length:0 }})
医疗设施 ({{ nearByFacilities.hospitals? nearByFacilities.hospitals.length:0 }})
其他 ({{ nearByFacilities.pois? nearByFacilities.pois.length:0 }})
附近学区
学校名称 类型 Grades Catchment 距离
{{ item.school_type }} {{ item.school_grades }} {{ item.is_catchment? 'In Catchment': '' }} {{ item.distance }}
贷款计算器
$
$
$
%
%
预计付款

$

每周 双周 半月 每月

附近的类似在盘房源
附近的类似Open House房源
附近的投资推荐(降价)房源
附近的类似已成交房源
房源浏览历史记录
获取更多信息
剩余字数500