$375,000

379 Dundas Street 104-106, London East, ON N6B 1V5

East K, London East,

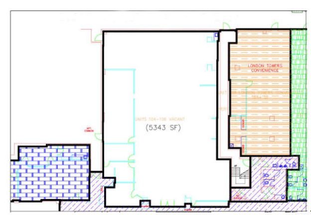
| | 5,343 平方英尺 |

Properties with this icon are courtesy of TRREB.

Why Rent when you can Own? For the cost leasing, own your Space! Prime Downtown Commercial/Office/Retail/Recreational Condo Unit For Sale. Exceptional Value. Rare opportunity to acquire a 5,343 SF commercial condo unit in the heart of downtown London. Located at 379 Dundas Street (London Towers) at the high-profile intersection of Dundas St & Colborne St. this property offers excellent exposure within a well-established multi-tenant commercial & residential complex. Strategically located within walking distrance to key downtown landmarks including Delta Hotels London Armouries, Canada Life Place, Victoria park & Richmond Row, offering immediate access to restaurants, retail & business services. Excellent opportunity for investors, professionals or business seeking a downtown presence at a highly competitive price point. Unit 104-106 consists of 5,343 SF of functional commercial space & is attractively priced at $375,000 ($70 PSF), representing outstanding value for downtown ownership. Property Highlights: - Total Area: 5,343 SF - Asking Price: $375,000 ($70/PSF) - Property Taxes (2025): $5,934.95 - Condo Fees: $5,307.64/month (inclusive of common area maintenance, snow removal, building insurance & all utilities) - On-site underground parking available. - Prominent signage opportunity along Dundas St. - Ownership includes access to a wide range of building amenities, including indoor pool, fitness centre, sauna, party room & rooftop outdoor area. - The building features secure fob entry, is fully wheelchair accessible, and includes elevator access along with common washrooms on both the 1st & 2nd floors. - The unit is being offered under Power of Sale, presenting a unique opportunity for investors and owner-users. Zoning: DA2 & TSA5 - Retail stores, Office, Clinics/Medical/Dental, Commercial Recreational, Assembly halls, Place of worship day care centres, financial laboratories, Taverns, private clubs, personal service, etc.

翻译

房屋信息
MLS®: X12939070
上盘公司 CUSHMAN & WAKEFIELD SOUTHWESTERN ONTARIO
室内面积 5343 平方英尺
土地面积 63832 平方英尺
最后更新 2026-03-31
物业属性 商业
挂盘价格 $375,000
单位价格 $70/平方英尺
地税额度 $5,935/年
更多信息
供水方式 Municipal
基建 Sanitary
详细描述
    位置和一般信息
  • HoldoverDays: 90
  • 房屋种类: Commercial
  • 房屋子类: Commercial Retail
  • GarageType: Underground
  • 路线: Located directly at the corner of Dundas Street and Colborne Street near Waterloo St & King.
  • 税收和 HOA 信息
  • 纳税年度: 2025
  • 停车
内部和外部特点
    内部特点
  • Cooling: Yes
  • HeatType: Gas Forced Air Open
  • 外部特点
房屋
    公共服务
  • 下水道: Sanitary
  • 地产及评估
  • 建筑面积 (总): 5343
  • 建筑面积单位: Square Feet
  • 地块信息
  • 地块号: 088270004
  • LotSizeUnits: Feet
  • LotDepth: 331.15
  • LotWidth: 192.76
  • Others
销售历史
地图与附近设施
地图
附近概况
公共交通 ({{ nearByFacilities.transits? nearByFacilities.transits.length:0 }})
购物中心 ({{ nearByFacilities.supermarkets? nearByFacilities.supermarkets.length:0 }})
医疗设施 ({{ nearByFacilities.hospitals? nearByFacilities.hospitals.length:0 }})
其他 ({{ nearByFacilities.pois? nearByFacilities.pois.length:0 }})
附近学区
学校名称 类型 Grades Catchment 距离
{{ item.school_type }} {{ item.school_grades }} {{ item.is_catchment? 'In Catchment': '' }} {{ item.distance }}
贷款计算器
$
$
$
%
%
预计付款

$

每周 双周 半月 每月

附近的类似在盘房源
附近的类似Open House房源
附近的投资推荐(降价)房源
附近的类似已成交房源
房源浏览历史记录
获取更多信息
剩余字数500