$2,050

403 Church Street 1410, Toronto C08, ON M4Y 0C9

Church-Yonge Corridor, Toronto,

| | 499 平方英尺 | 建筑年份: 0-5 |

Properties with this icon are courtesy of TRREB.

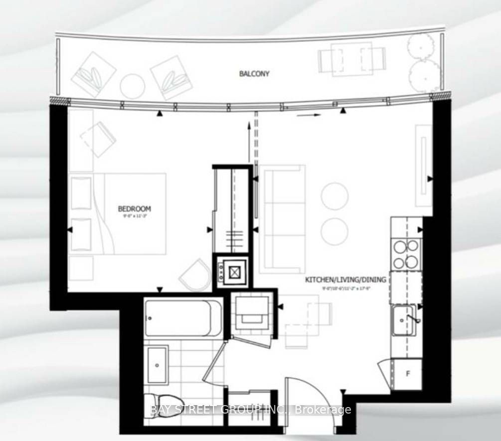
Sun-filled Functional One Bedroom Unit In Stanley Condo * Unobstructed East View W/Long Balcony * 9Ft Floor To Ceiling Windows In Living Area & Bedroom * Premium Finishes W/Built-In Kitchen Appliances * Upgraded Ceiling Spotlight In Living Room * Right Across From Loblaws & Lcbo * Steps To College Station & Streetcar Right Outside The Condo * Surrounded By Restaurants & Coffee Shops & Banks * Amazing Amenities:24 Hr Concierge,Rooftop Patio,Gym,Yoga Studio, Party Room!

翻译

房屋信息
MLS®: C12988770
上盘公司 BAY STREET GROUP INC.
卧室 1
洗手间 1
地下室 1
室内面积 0-499 平方英尺
风格 Apartment
最后更新 2026-04-13
物业属性 公寓
挂盘价格 $2,050
建造年份 0-5
房间信息
更多信息
外部装修 混凝土
详细描述
    位置和一般信息
  • HoldoverDays: 60
  • 建筑样式: Apartment
  • 房屋种类: Residential Condo & Other
  • 房屋子类: Condo Apartment
  • GarageType: None
  • 路线: Church/Carlton
  • 停车
  • 停车位特点: None
内部和外部特点
    洗手间信息
  • WashroomsType1: 1
  • WashroomsType1Level: Flat
  • 卧室信息
  • BedroomsAboveGrade: 1
  • 内部特点
  • 内部特点: Carpet Free
  • 地下室: None
  • Cooling: Central Air
  • HeatSource: Gas
  • HeatType: Forced Air
  • LaundryLevel: Main Level
  • 外部特点
  • ConstructionMaterials: Concrete
房屋
    公共服务
    地产及评估
  • 是否新建筑: true
  • 地块信息
    Others
  • PropertyFeatures: Hospital, Library, Park, Public Transit, School
销售历史
地图与附近设施
地图
附近概况
公共交通 ({{ nearByFacilities.transits? nearByFacilities.transits.length:0 }})
购物中心 ({{ nearByFacilities.supermarkets? nearByFacilities.supermarkets.length:0 }})
医疗设施 ({{ nearByFacilities.hospitals? nearByFacilities.hospitals.length:0 }})
其他 ({{ nearByFacilities.pois? nearByFacilities.pois.length:0 }})
附近学区
学校名称 类型 Grades Catchment 距离
{{ item.school_type }} {{ item.school_grades }} {{ item.is_catchment? 'In Catchment': '' }} {{ item.distance }}
城市概况
附近的类似在盘房源
附近的类似Open House房源
附近的投资推荐(降价)房源
附近的类似已成交房源
房源浏览历史记录
获取更多信息
剩余字数500