$1,539,000

$60,000

5224 Verhoeven Road, Burlington, ON L7L 3A9

Appleby, Burlington,

| | | 2,000 平方英尺 |

Properties with this icon are courtesy of TRREB.

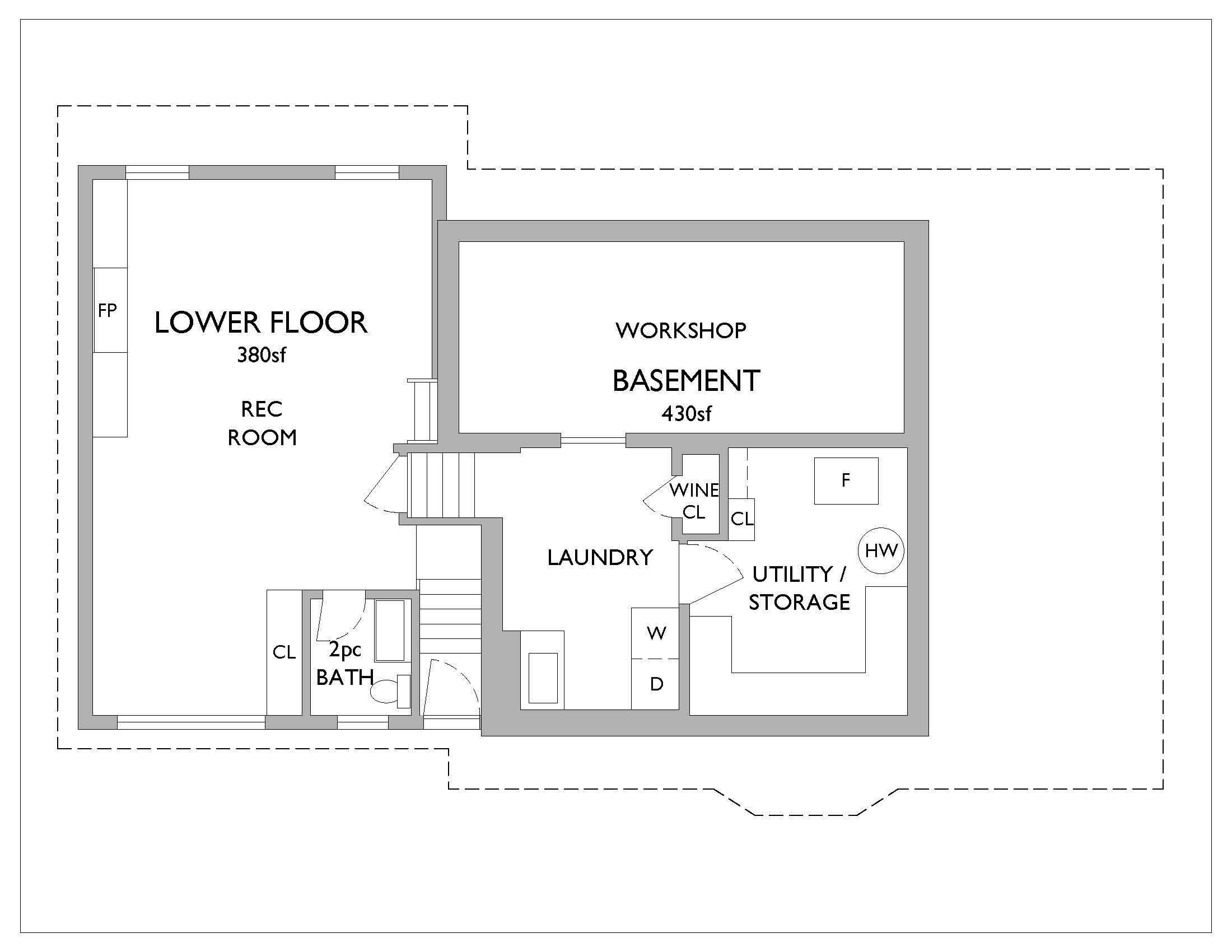
Presenting a rare opportunity to own in the highly sought-after, family-friendly neighbourhood of Elizabeth Gardens in Burlington. Just minutes from the shores of Lake Ontario, everyday amenities, parks, and top-rated schools-including Nelson High School, this beautifully refreshed home offers exceptional space, comfort, and lifestyle. Boasting 5+1 bedrooms and 4 bathrooms across five thoughtfully designed levels, this home is filled with natural light and generous living areas for the whole family. The oversized primary retreat features a private ensuite and a spacious walk-in closet, creating a true sanctuary. At the heart of the home, the stylish, on-trend eat-in kitchen is as functional as it is inviting, complete with two work sinks and ample space for gathering, cooking, and entertaining. Step outside to your own private backyard oasis. Relax beside the tranquil waterfall pond, entertain under the wooden gazebo, or unwind by the sparkling saltwater inground pool. A gas BBQ hookup makes outdoor dining effortless, while the large shed and raised garden beds offer added convenience for hobbyists and home gardeners alike. The newly renovated lower-level family room is warm and welcoming, featuring a cozy gas fireplace and abundant seating space. Downstairs, you'll also find a cedar-lined wine closet, a well-designed laundry area, generous storage, and a dedicated workshop-perfect for renovators, carpenters, or creative pursuits. With a newer furnace and A/C, four-car parking including garage space, and evident pride of ownership throughout, this lovingly maintained home offers comfort, versatility, and timeless appeal. This is a home that truly must be experienced to be appreciated.

翻译

房屋信息
MLS®: W12806674
上盘公司 Right At Home Realty, Brokerage
卧室 5
洗手间 4
地下室 1
室内面积 1500-2000 平方英尺
土地面积 7085 平方英尺
风格 Sidesplit 5
最后更新 2026-02-20
物业属性 独立屋
挂盘价格 $1,539,000
单位价格 $770/平方英尺
地税额度 $6,549/年
房间信息
更多信息
外部装修 砖, 乙烯化合物墙板
非露天车位 1
车位总数 3
供水方式 Municipal
基建 Sewer
详细描述
    位置和一般信息
  • HoldoverDays: 90
  • 建筑样式: Sidesplit 5
  • 房屋种类: Residential Freehold
  • 房屋子类: Detached
  • DirectionFaces: North
  • GarageType: Attached
  • 路线: Lakeshore Rd/White Pines Dr/Verhoeven Rd
  • 税收和 HOA 信息
  • 纳税年度: 2025
  • 停车
  • 停车位特点: Front Yard Parking, Other, Private Double
  • ParkingSpaces: 3
  • 停车位总数: 4
内部和外部特点
    洗手间信息
  • WashroomsType1: 1
  • WashroomsType1Level: Lower
  • WashroomsType2: 1
  • WashroomsType2Level: Second
  • WashroomsType3: 1
  • WashroomsType3Level: Third
  • WashroomsType4: 1
  • WashroomsType4Level: Third
  • 卧室信息
  • BedroomsAboveGrade: 5
  • 内部特点
  • 壁炉总数: 1
  • 内部特点: Auto Garage Door Remote, Separate Hydro Meter, Storage, Water Heater Owned, Water Meter
  • 地下室: Partially Finished, Separate Entrance, Walk-Up
  • Cooling: Central Air
  • HeatSource: Gas
  • HeatType: Forced Air
  • LaundryLevel: Lower Level
  • 外部特点
  • ConstructionMaterials: Brick, Vinyl Siding
  • 外部特点: Landscape Lighting, Lawn Sprinkler System, Landscaped, Lighting, Patio, Private Pond, Porch, Privacy
  • 屋顶: Shingles
  • 泳池特点: Inground, Salt
房屋
    公共服务
  • 下水道: Sewer
  • 地产及评估
  • 基建详情: Concrete Block
  • 地块信息
  • 地块号: 070020176
  • LotSizeUnits: Feet
  • LotDepth: 65
  • LotWidth: 109
  • Others
  • PropertyFeatures: Fenced Yard, Park, Public Transit, School Bus Route, School, Lake Access
销售历史
地图与附近设施
地图
附近概况
公共交通 ({{ nearByFacilities.transits? nearByFacilities.transits.length:0 }})
购物中心 ({{ nearByFacilities.supermarkets? nearByFacilities.supermarkets.length:0 }})
医疗设施 ({{ nearByFacilities.hospitals? nearByFacilities.hospitals.length:0 }})
其他 ({{ nearByFacilities.pois? nearByFacilities.pois.length:0 }})
开放日
2026-04-04 01:00 PM - 04:00 PM
附近学区
学校名称 类型 Grades Catchment 距离
{{ item.school_type }} {{ item.school_grades }} {{ item.is_catchment? 'In Catchment': '' }} {{ item.distance }}
贷款计算器
$
$
$
%
%
预计付款

$

每周 双周 半月 每月

城市概况
附近的类似在盘房源
附近的类似Open House房源
附近的投资推荐(降价)房源
附近的类似已成交房源
房源浏览历史记录
获取更多信息
剩余字数500