$599,900

$20,100

31 Kyle Court, Quinte West, ON K0K 2C0

Frankford Ward, Quinte West,

| | | 1,100 平方英尺 | 建筑年份: 16-30 |

Properties with this icon are courtesy of TRREB.

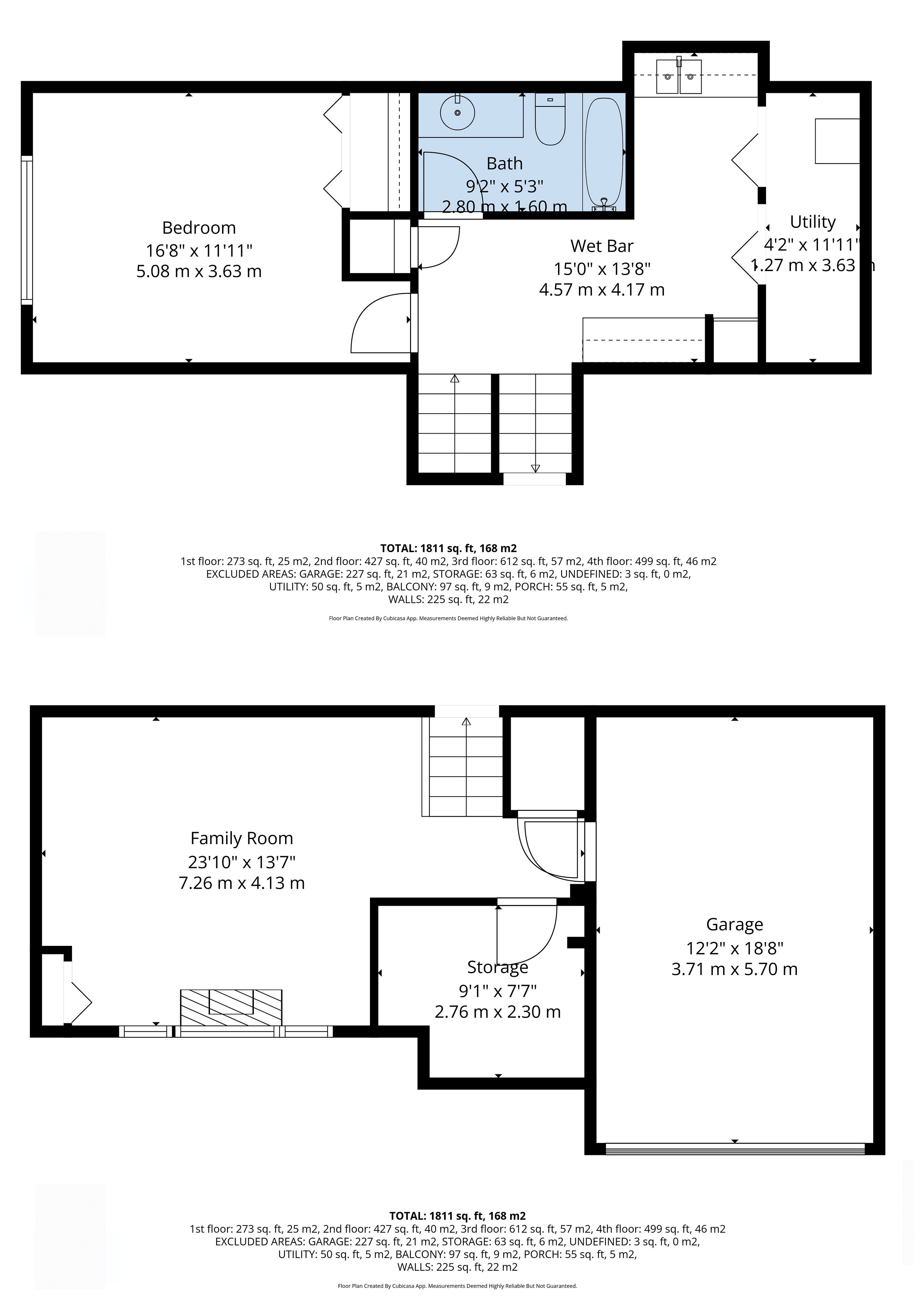
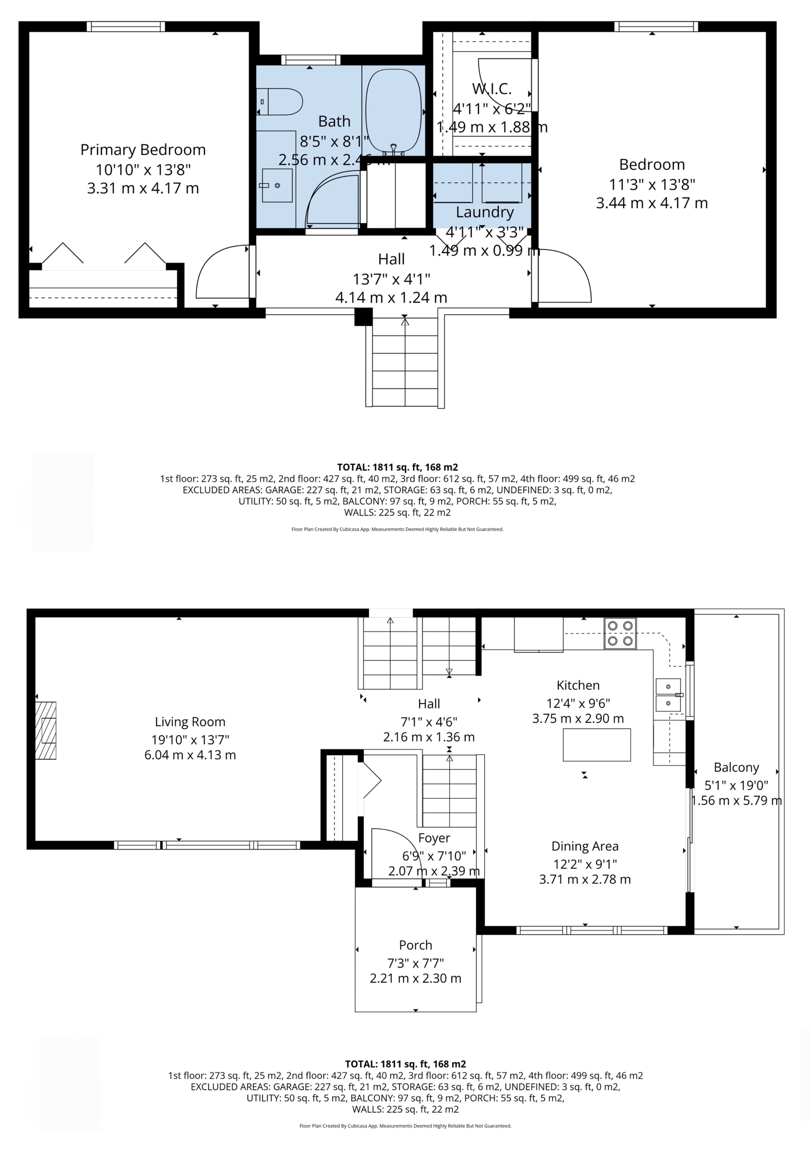
Welcome to 31 Kyle Court, located on a desirable and quiet court in the heart of Frankford - a home that combines comfort, style, and versatility.As you enter, you're greeted by a spacious landing that provides plenty of room to welcome guests and stay organized. Upstairs, the kitchen and dining area flow seamlessly together, offering an abundance of space for entertaining and for the culinary enthusiast. Just a few steps away, the living room is bright and inviting, featuring vaulted ceilings and a large bay window, which captures breathtaking views year round of Trent River Valley, creating a warm and comfortable space to relax and unwind. The layout offers a natural flow between the areas while still maintaining clearly defined spaces for cooking, dining, and lounging. The main level features two well-sized bedrooms, each offering plenty of closet space for storage and organization. The primary bedroom includes a large walk-in closet, providing ample room for clothing and personal items. A four-piece bathroom serves the upper level, while convenient main-floor laundry adds functionality and ease to everyday living.The lower level of this raised bungalow provides excellent flexibility with a potential self-contained in-law suite, complete with a custom kitchenette , a dining area, a spacious bedroom with a large closet, a full bathroom, and a bright living room with oversized windows. This level also offers walkout access to the garage, making it ideal for extended family, guests, or even teenagers who want their own space while staying close to home. Situated in a quiet, sought-after Frankford neighbourhood, 31 Kyle Court offers bright, flowing living spaces, modern updates, and multi-generational living potential - a truly wonderful place to call home. Recent Updates Include New LVP Flooring 2026, Reverse Osmosis System 2026, Smart Thermostat 2024, Roof 2023, Garage Door 2023, custom kitchenette (2023)

翻译

房屋信息
MLS®: X12722624
上盘公司 EXP REALTY
卧室 3
洗手间 2
地下室 1
室内面积 700-1100 平方英尺
土地面积 8167 平方英尺
风格 Bungalow-Raised
最后更新 2026-01-22
物业属性 独立屋
挂盘价格 $599,900
单位价格 $545/平方英尺
地税额度 $3,714/年
建造年份 16-30
房间信息
更多信息
外部装修 砖, 乙烯化合物墙板
非露天车位 1
车位总数 4
供水方式 Municipal
基建 Sewer
详细描述
    位置和一般信息
  • HoldoverDays: 90
  • 建筑样式: Bungalow-Raised
  • 房屋种类: Residential Freehold
  • 房屋子类: Detached
  • DirectionFaces: East
  • GarageType: Attached
  • 路线: N Trent Street to Huffman Rd to Kyle Ct
  • 税收和 HOA 信息
  • 纳税年度: 2025
  • 停车
  • 停车位特点: Private Double
  • ParkingSpaces: 4
  • 停车位总数: 5
内部和外部特点
    洗手间信息
  • WashroomsType1: 1
  • WashroomsType1Level: Main
  • WashroomsType2: 1
  • WashroomsType2Level: Basement
  • 卧室信息
  • BedroomsAboveGrade: 2
  • BedroomsBelowGrade: 1
  • 内部特点
  • 内部特点: In-Law Capability
  • 地下室: Finished
  • Cooling: Central Air
  • HeatSource: Gas
  • HeatType: Forced Air
  • LaundryLevel: Main Level
  • 外部特点
  • ConstructionMaterials: Brick, Vinyl Siding
  • 屋顶: Asphalt Rolled
  • 泳池特点: None
房屋
    公共服务
  • 下水道: Sewer
  • 地产及评估
  • 基建详情: Poured Concrete
  • 地块信息
  • 地块号: 403490194
  • LotSizeUnits: Feet
  • LotDepth: 128.27
  • LotWidth: 63.67
  • Others
销售历史
地图与附近设施
地图
附近概况
公共交通 ({{ nearByFacilities.transits? nearByFacilities.transits.length:0 }})
购物中心 ({{ nearByFacilities.supermarkets? nearByFacilities.supermarkets.length:0 }})
医疗设施 ({{ nearByFacilities.hospitals? nearByFacilities.hospitals.length:0 }})
其他 ({{ nearByFacilities.pois? nearByFacilities.pois.length:0 }})
开放日
2026-04-11 12:00 PM - 02:00 PM
附近学区
学校名称 类型 Grades Catchment 距离
{{ item.school_type }} {{ item.school_grades }} {{ item.is_catchment? 'In Catchment': '' }} {{ item.distance }}
贷款计算器
$
$
$
%
%
预计付款

$

每周 双周 半月 每月

附近的类似在盘房源
附近的类似Open House房源
附近的投资推荐(降价)房源
附近的类似已成交房源
房源浏览历史记录
获取更多信息
剩余字数500