$1,001,000

11 Patterson Road 24 & 25, Barrie, ON L4N 7W5

400 North, Barrie,

| | 3,080 sq.ft. | Year Built: 31-50 |

Properties with this icon are courtesy of TRREB.

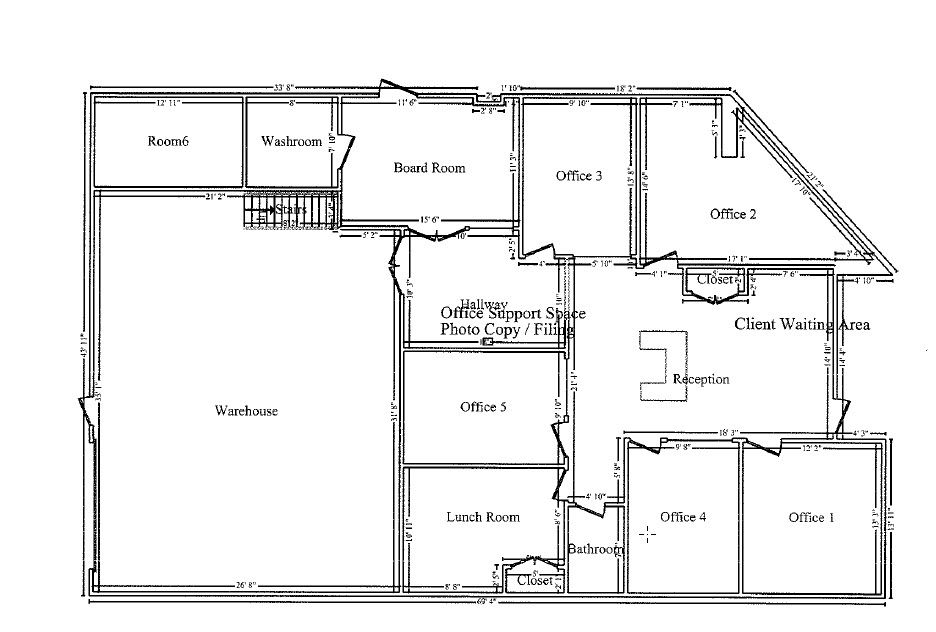
Stop paying someone else's mortgage -- own your workspace in the heart of Barrie, just minutes from downtown and Hwy 400. This professionally finished office spans two commercial condo units and was fully renovated in 2019. The front office area features a welcoming reception, waiting area, bright boardroom with custom glass doors, staff/lunch room, four private offices, open work area, and two washrooms -- ideal for a wide range of professional users. At the rear, utilize an approximate 740 SF of warehouse space with a 19' clear height and a 10' x 12' roll-up door, plus an additional 182 SF mezzanine for extra storage. Comfort and efficiency are covered with ductless heat pumps in the front offices for added cooling (2020), updated central air (2020), and a new forced-air natural gas furnace (2023).Included are a built-in custom desk and hutch in the angled office, custom blinds throughout, fridge, dishwasher, microwave, HWT (owned) and boardroom table. Additional furnishings (including copier) may be available, subject to negotiation. Flexible possession. Monthly condo fees of $775.93 include water/sewer, snow removal, landscaping, insurance, management, non-exclusive parking, and building envelope maintenance.

Property Info
MLS®: S12670086
Listing Courtesy of SUTTON GROUP INCENTIVE REALTY INC.
Total Bathrooms 2
Floor Space 3080 sq.ft.
Last Updated 2026-01-06
Property Type Commerece
Listed Price $1,001,000
Unit Pricing $325/sq.ft.
Tax Estimate $7,220/Year
Year Built 31-50
More Details
Water Supply Municipal
Foundation Sanitary+Storm
Summary
    Location and General Information
  • HoldoverDays: 180
  • Property Type: Commercial
  • Property Sub Type: Office
  • GarageType: None
  • Directions: Located at Corner of Tiffin & Patterson, facing Patterson
  • Taxes and HOA Information
  • Tax Year: 2025
  • Parking
Interior and Exterior Features
    Bathrooms Information
  • WashroomsType1: 2
  • Interior Features
  • Cooling: Yes
  • HeatSource: Gas
  • HeatType: Gas Forced Air Closed
  • Exterior Features
Property
    Utilities
  • Sewer: Sanitary+Storm
  • Property and Assessments
  • Building Area Total: 3080
  • Building Area Units: Square Feet
  • Lot Information
  • Parcel Number: 591800024
  • LotSizeUnits: Feet
  • Others
Sold History
MAP & Nearby Facilities (The data is not provided by TRREB)
Map
Nearby Facilities
Public Transit ({{ nearByFacilities.transits? nearByFacilities.transits.length:0 }})
SuperMarket ({{ nearByFacilities.supermarkets? nearByFacilities.supermarkets.length:0 }})
Hospital ({{ nearByFacilities.hospitals? nearByFacilities.hospitals.length:0 }})
Other ({{ nearByFacilities.pois? nearByFacilities.pois.length:0 }})
School Catchments
School Name Type Grades Catchment Distance
{{ item.school_type }} {{ item.school_grades }} {{ item.is_catchment? 'In Catchment': '' }} {{ item.distance }}
Mortgage Calculator (The data is not provided by TRREB)
$
$
$
%
%
Estimated Payments

$

Weekly Bi Weekly Semi Monthly Monthly

Nearby Similar Active listings
Nearby Open House listings
Nearby Price Reduced listings
Nearby Similar Listings Closed
MLS Listing Browsing History
Obtain More Info
500 word remaining