$1,849,000

4 & 8 Bartlett Drive, Seguin, ON P2A 2W8

Seguin, Seguin,

| | 30  | 4,425 sq.ft. |

Properties with this icon are courtesy of TRREB.

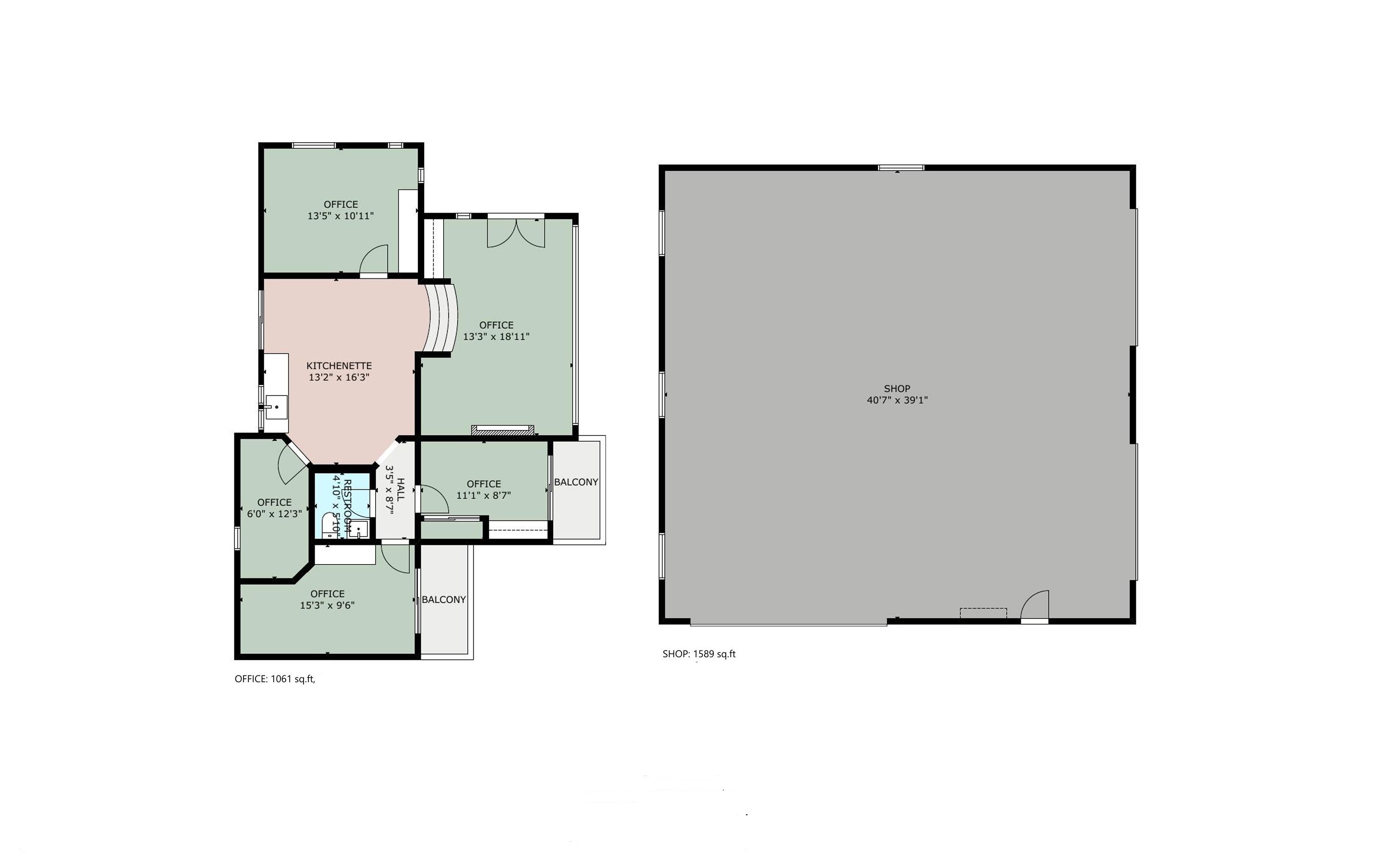
Commercial and Residential compound in the desirable Bartlett Springs Subdivision, less than one minute from the Oastler Lake Boat Launch and five minutes to Parry Sounds Shopping Area. Situated on a paved year-round municipally maintained roadway. This property is comprised of two separately deeded properties. Commercial Property: Has a very large legal non-conforming road sign and is situated on the corner of Oastler Park Drive with excellent exposure. The Modern Office building is approximately 1,100 sqft and is comprised of a Reception/Waiting Area, Boardroom/Lunchroom, Four Formal Offices and a Two-Piece Washroom. There is ample parking for clients and staff. The 40' X 40' Industrial Style Shop was Built in 2022. It has Three Overhead Doors (1-14' x 10' & 2-12' x 10' doors), Vaulted Ceilings, Natural gas-fired in-floor radiant heat and a Large Gravel Parking/Yard Area. The Residential component is comprised of a completely renovated Valhalla Style home. It has approximately 2,700 sqft feet of finished area, spanning three levels and it has been extensively renovated. In floor heat in all the bathrooms and the entry foyer. The main floor is comprised of open concept kitchen and dining area, great room with vaulted ceilings, two-piece washroom and an office (could easily be utilized as a bedroom, as it has a closet and "cheater" access to the washroom). The second level is comprised of a second bedroom, a main four-piece bathroom and a primary bedroom with walk-in closet and three-piece ensuite bathroom. The lower level is comprised of a media / family room, guest bedroom, laundry room and four-piece bathroom with walk-in shower and soaker tub. The 30 X 40 detached "Man Cave" is heated, insulated and finished with commercial grade epoxy floor and high-quality shelving and cabinets. Extensively landscaped, with gardens, a pond and a volleyball court. Fibre Optic internet available. HST applicable only to commercial property. Taxes combined for both properties.

Property Info
MLS®: X12441115
Listing Courtesy of Century 21 Granite Properties Ltd.
Floor Space 4425 sq.ft.
Lot Size 151200 sq.ft.
Last Updated 2025-10-02
Property Type Commerece
Listed Price $1,849,000
Unit Pricing $418/sq.ft.
Tax Estimate $4,434/Year
More Details
Parking Total 30
Water Supply Well
Summary
    Location and General Information
  • HoldoverDays: 90
  • Property Type: Commercial
  • Property Sub Type: Investment
  • GarageType: Double Detached
  • Directions: Highway 400 to Oaslter Park Drive, on Corner of Oastler and Bartlett
  • Taxes and HOA Information
  • Tax Year: 2025
  • Parking
  • ParkingSpaces: 30
Interior and Exterior Features
    Interior Features
  • Cooling: Yes
  • HeatType: Gas Forced Air Closed
  • Exterior Features
Property
    Utilities
  • Water Source: Drilled Well
  • Property and Assessments
  • Building Area Total: 4425
  • Building Area Units: Square Feet
  • Lot Information
  • Parcel Number: 521820038
  • LotSizeUnits: Feet
  • LotDepth: 350
  • LotWidth: 432
  • Others
Sold History
MAP & Nearby Facilities (The data is not provided by TRREB)
Map
Nearby Facilities
Public Transit ({{ nearByFacilities.transits? nearByFacilities.transits.length:0 }})
SuperMarket ({{ nearByFacilities.supermarkets? nearByFacilities.supermarkets.length:0 }})
Hospital ({{ nearByFacilities.hospitals? nearByFacilities.hospitals.length:0 }})
Other ({{ nearByFacilities.pois? nearByFacilities.pois.length:0 }})
School Catchments
School Name Type Grades Catchment Distance
{{ item.school_type }} {{ item.school_grades }} {{ item.is_catchment? 'In Catchment': '' }} {{ item.distance }}
Mortgage Calculator (The data is not provided by TRREB)
$
$
$
%
%
Estimated Payments

$

Weekly Bi Weekly Semi Monthly Monthly

Nearby Similar Active listings
Nearby Open House listings
Nearby Price Reduced listings
Nearby Similar Listings Closed
MLS Listing Browsing History
Obtain More Info
500 word remaining