$3,000

33 Singer Court 309, Toronto C15, ON M2K 0B4

Bayview Village, Toronto,

| | | 899 sq.ft. | Year Built: 6-10 |

Properties with this icon are courtesy of TRREB.

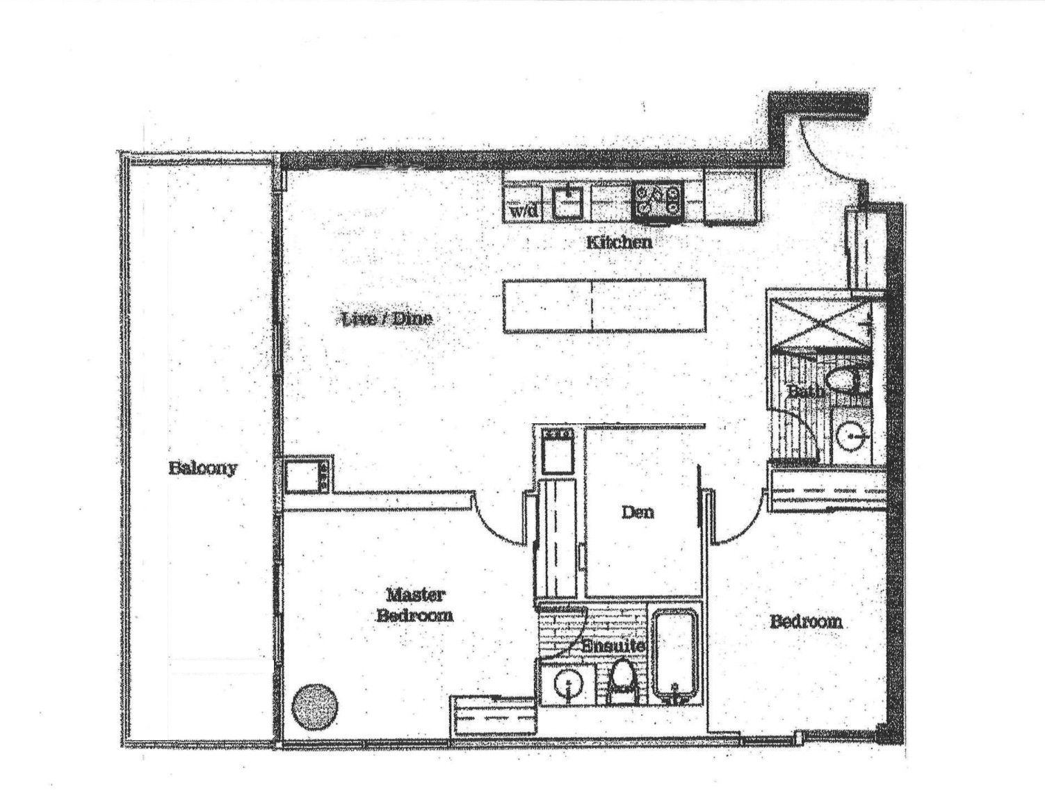
Rarely Offered Southwest Corner Unit, Located In Heart Of North York, 2 Bed+Den, 2 Full Bath. Den can be used as 3rd bed or home office. Superior Functional Layout, 882 Sf Plus 223 Sf Largest West Facing Terrace In The Building! Sunny, Bright, Spacious W/Lots Of Windows. Unobstructed View! Updated W/Luxury Vinyl Floors Throughout, S/S Appliances, Modern Kitchen W/Granite Counter Top & Huge Breakfast Island. Close To Subway, 401, 404, Ikea, And All Amenities. 1 Parking, 1 Locker Included. (Photos Were Taken Prior To Tenants Moving In)

Property Info
MLS®: C13045466
Listing Courtesy of BAY STREET GROUP INC.
Total Bedrooms 3
Total Bathrooms 2
Basement 1
Floor Space 800-899 sq.ft.
Style Apartment
Last Updated 2026-04-26
Property Type Condo
Listed Price $3,000
Year Built 6-10
Rooms
More Details
Exterior Finish Concrete
Parking Cover 1
Parking Total 1
Summary
    Location and General Information
  • HoldoverDays: 90
  • Architectural Style: Apartment
  • Property Type: Residential Condo & Other
  • Property Sub Type: Condo Apartment
  • GarageType: Underground
  • Directions: Sheppard / Leslie
  • Parking
  • Parking Features: Underground
  • ParkingSpaces: 1
  • Parking Total: 1
Interior and Exterior Features
    Bathrooms Information
  • WashroomsType1: 1
  • WashroomsType2: 1
  • Bedrooms Information
  • BedroomsAboveGrade: 2
  • BedroomsBelowGrade: 1
  • Interior Features
  • Interior Features: Other
  • Basement: None
  • Cooling: Central Air
  • HeatSource: Gas
  • HeatType: Forced Air
  • Exterior Features
  • ConstructionMaterials: Concrete
Property
    Utilities
    Property and Assessments
    Lot Information
    Others
Sold History
MAP & Nearby Facilities (The data is not provided by TRREB)
Map
Nearby Facilities
Public Transit ({{ nearByFacilities.transits? nearByFacilities.transits.length:0 }})
SuperMarket ({{ nearByFacilities.supermarkets? nearByFacilities.supermarkets.length:0 }})
Hospital ({{ nearByFacilities.hospitals? nearByFacilities.hospitals.length:0 }})
Other ({{ nearByFacilities.pois? nearByFacilities.pois.length:0 }})
School Catchments
School Name Type Grades Catchment Distance
{{ item.school_type }} {{ item.school_grades }} {{ item.is_catchment? 'In Catchment': '' }} {{ item.distance }}
City Introduction
Nearby Similar Active listings
Nearby Open House listings
Nearby Price Reduced listings
Nearby Similar Listings Closed
MLS Listing Browsing History
Obtain More Info
500 word remaining