$1,768,000

$175,032,000

1690 Carrington Road, Mississauga, ON L5M 2K2

East Credit, Mississauga,

| | | 3,000 sq.ft. |

Properties with this icon are courtesy of TRREB.

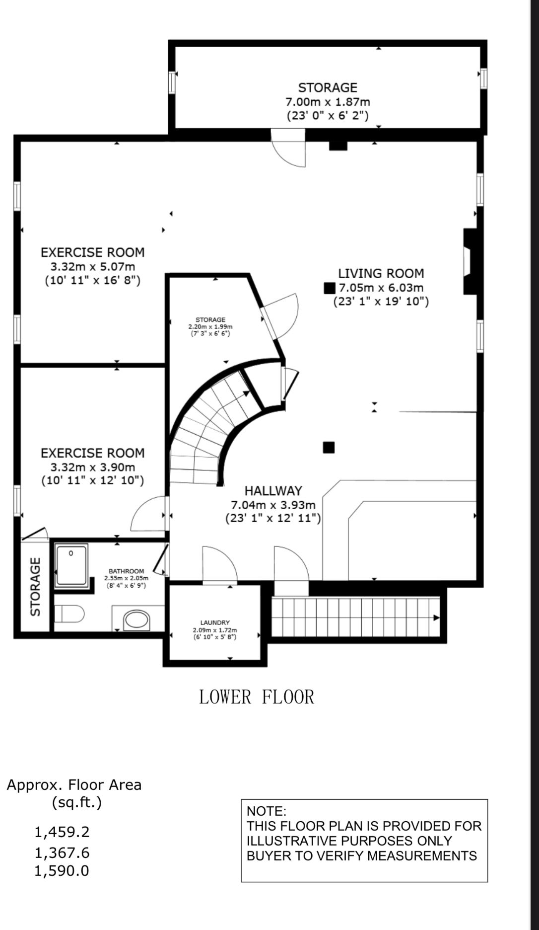
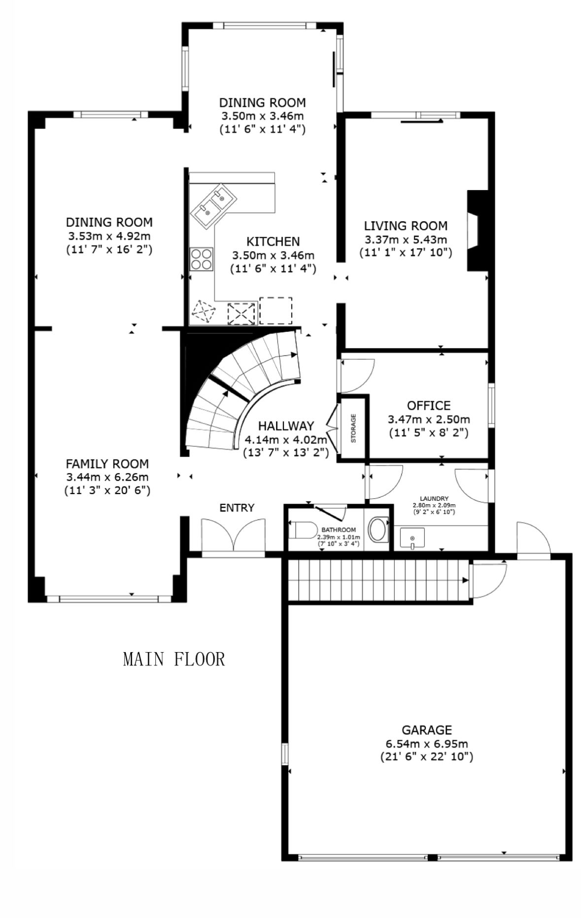
Gorgeous Home with Massive 58X125 Lot In Quiet Area. $200K Renovated in the house, Metal Roof 2024, Basement Exercise Room 2021, Chimney 2021; Gutter and Downspout 2021, Renovated in 2016: Two Ensuites Bathroom; One Semi Ensuite; Smooth Ceiling Throughout, Modern Stairs; Windows, Doors And Luxury Trims; Hardwood Floors; Lots of Pot Lights; Basement Floor; Pots lights under the eaves of the house, Etc.; Skylight, Modern Kitchen W/ Granite Countertop, S/S Appliances, Gas Stove, Eat-in Area W/Large Picture Window Facing Prof. Garden W/ 2 Mature Cherry Trees and one Pear Tree. Lrge Family Room W/Fireplace & W/O To The Deck; Finished Bsmt W/ Sep. Entr. with Rec Room, Wet Bar, Gas Fireplace, 3Pc Bathrm, Central Vacuum. Minutes To The Village Of Streetsville! Walk To Credit River And Trails! Close to Go Train Station!

Property Info
MLS®: W12649838
Listing Courtesy of REAL HOME CANADA REALTY INC.
Total Bedrooms 5
Total Bathrooms 5
Basement 1
Floor Space 2500-3000 sq.ft.
Lot Size 7368 sq.ft.
Style 2-Storey
Last Updated 2025-12-25
Property Type House
Listed Price $1,768,000
Unit Pricing $589/sq.ft.
Tax Estimate $10,101/Year
Rooms
More Details
Exterior Finish Brick
Parking Cover 2
Parking Total 4
Water Supply Municipal
Foundation Sewer
Summary
    Location and General Information
  • HoldoverDays: 30
  • Architectural Style: 2-Storey
  • Property Type: Residential Freehold
  • Property Sub Type: Detached
  • DirectionFaces: South
  • GarageType: Detached
  • Directions: West of Creditview Rd / South of Carolyn Rd
  • Taxes and HOA Information
  • Tax Year: 2025
  • Parking
  • Parking Features: Private
  • ParkingSpaces: 4
  • Parking Total: 6
Interior and Exterior Features
    Bathrooms Information
  • WashroomsType1: 1
  • WashroomsType1Level: Main
  • WashroomsType2: 1
  • WashroomsType2Level: Second
  • WashroomsType3: 1
  • WashroomsType3Level: Second
  • WashroomsType4: 1
  • WashroomsType4Level: Second
  • WashroomsType5: 1
  • WashroomsType5Level: Basement
  • Bedrooms Information
  • BedroomsAboveGrade: 4
  • BedroomsBelowGrade: 1
  • Interior Features
  • Interior Features: Carpet Free, Auto Garage Door Remote, Built-In Oven, Central Vacuum
  • Basement: Finished, Separate Entrance
  • Cooling: Central Air
  • HeatSource: Gas
  • HeatType: Forced Air
  • LaundryLevel: Main Level
  • Exterior Features
  • ConstructionMaterials: Brick
  • Exterior Features: Deck
  • Roof: Metal
  • Pool Features: None
Property
    Utilities
  • Sewer: Sewer
  • Property and Assessments
  • Foundation Details: Concrete
  • Lot Information
  • LotSizeUnits: Feet
  • LotDepth: 125.41
  • LotWidth: 58.75
  • Others
  • PropertyFeatures: Fenced Yard, Hospital, Library, Park, Public Transit, Rec./Commun.Centre
Sold History
MAP & Nearby Facilities (The data is not provided by TRREB)
Map
Nearby Facilities
Public Transit ({{ nearByFacilities.transits? nearByFacilities.transits.length:0 }})
SuperMarket ({{ nearByFacilities.supermarkets? nearByFacilities.supermarkets.length:0 }})
Hospital ({{ nearByFacilities.hospitals? nearByFacilities.hospitals.length:0 }})
Other ({{ nearByFacilities.pois? nearByFacilities.pois.length:0 }})
School Catchments
School Name Type Grades Catchment Distance
{{ item.school_type }} {{ item.school_grades }} {{ item.is_catchment? 'In Catchment': '' }} {{ item.distance }}
Mortgage Calculator (The data is not provided by TRREB)
$
$
$
%
%
Estimated Payments

$

Weekly Bi Weekly Semi Monthly Monthly

City Introduction
Nearby Similar Active listings
Nearby Open House listings
Nearby Price Reduced listings
Nearby Similar Listings Closed
MLS Listing Browsing History
Obtain More Info
500 word remaining