$3,200
2558 Mindemoya Road, Mississauga, ON L5C 2R2
Erindale, Mississauga,
Properties with this icon are courtesy of
TRREB.
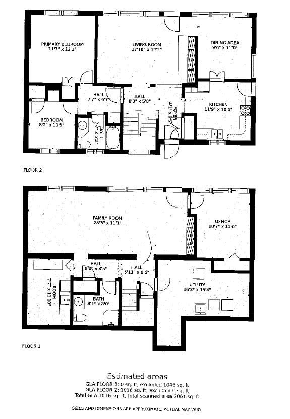
Welcome to this charming detached double garage home featuring 2+1 bedrooms and 2 full bathrooms, total 2000 living space, located in the quaint village of Erindale. This brick bungalow boasts a walkout to the backyard and overlooks the picturesque Credit River Ravine. The living room features a stunning floor-to-ceiling stone wood-burning fireplace with a walkout to the deck. The recreation room includes a stone fireplace with a gas insert. Conveniently located near Erindale parks, shopping malls, and highways and walking distance to UTM.
- HoldoverDays: 30
- Architectural Style: Bungalow
- Property Type: Residential Freehold
- Property Sub Type: Detached
- DirectionFaces: West
- GarageType: Attached
- Directions: Dundas/Mississauga Rd
- Parking Features: Private
- ParkingSpaces: 2
- Parking Total: 3
- WashroomsType1: 1
- WashroomsType1Level: Main
- WashroomsType2: 1
- WashroomsType2Level: Lower
- BedroomsAboveGrade: 2
- BedroomsBelowGrade: 1
- Interior Features: Floor Drain, Storage
- Basement: Finished with Walk-Out
- Cooling: Central Air
- HeatSource: Gas
- HeatType: Forced Air
- LaundryLevel: Lower Level
- ConstructionMaterials: Brick
- Roof: Asphalt Shingle
- Pool Features: None
- Sewer: Sewer
- Foundation Details: Concrete
- Lot Features: Irregular Lot
- Parcel Number: 133590455
- LotSizeUnits: Feet
- LotDepth: 213.5
- LotWidth: 62
| School Name | Type | Grades | Catchment | Distance |
|---|---|---|---|---|
| {{ item.school_type }} | {{ item.school_grades }} | {{ item.is_catchment? 'In Catchment': '' }} | {{ item.distance }} |