$1,479,000

18 Ivylea Street, South of Baseline to Knoxdale, ON K2G 4X5

7604 - Craig Henry/Woodvale, South of Baseline to Knoxdale,

| | | 3,000 sq.ft. |

Properties with this icon are courtesy of TRREB.

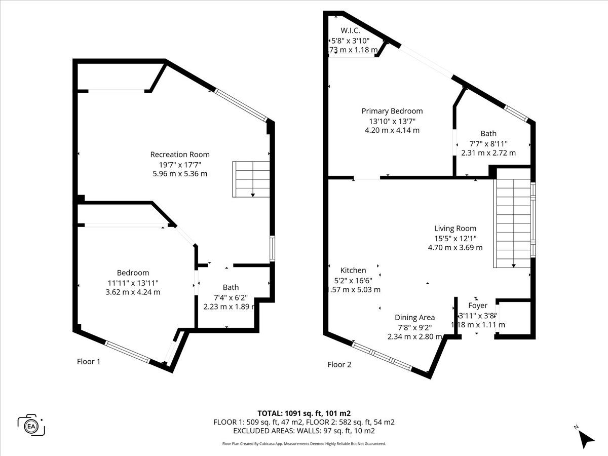
COACH HOUSE OPPORTUNITY FOR MULTI GENERATIONAL HOME OR INVESTORS! Stunning detached home with an income-producing two-bedroom coach house-where modern family luxury meets smart investment. With a total of eight bedrooms between the main home and coach house, this property is truly an investor's dream. The main home (6 bedrooms, 3.5 baths, ~3,000 sqft.) offers a bright, open-concept design centered around a showpiece new (2025) kitchen featuring granite counters, a large peninsula, breakfast area, ceramic backsplash, stainless steel appliances, and a professional-grade gas range. Elegant new ceramic flooring (2025) in the foyer, kitchen, and hall complements rich new hardwood throughout the main and second floors (2025), while fresh designer paint (2025) ties it all together in a timeless palette. Dining and living spaces flow effortlessly for entertaining, with a versatile family room off the kitchen. A sleek new powder room (2025), welcoming foyer, mudroom with laundry, and upgraded railings (2025) complete the main level. Upstairs, the serene primary suite impresses with a full-width closet and a luxurious new ensuite (2025) featuring a double vanity and glass shower. Three additional bedrooms plus a renovated main bath (2025) with dual sinks and granite counters provide total comfort. The finished lower level adds even more living space with a rec room, two bedrooms, a new full bath (2025), and plenty of storage.The luxury two-bedroom, two-bath coach house (~1,000 sq.ft.) is fully independent with a private entrance and separate hydro and gas meters. Complete with a full kitchen, living room, dining area, rec room, and primary suite with walk-in closet, it's currently rented for $2,850/month-ideal for multigenerational living or a steady income stream. A rare offering that combines design, functionality, and financial upside, this property delivers style and versatility at their best!

Property Info
MLS®: X12733180
Listing Courtesy of EXP REALTY
Total Bedrooms 8
Total Bathrooms 6
Basement 1
Floor Space 2500-3000 sq.ft.
Lot Size 6215 sq.ft.
Style 2-Storey
Last Updated 2026-01-27
Property Type House
Listed Price $1,479,000
Unit Pricing $493/sq.ft.
Tax Estimate $7,603/Year
Rooms
More Details
Exterior Finish Brick
Parking Cover 2
Parking Total 3
Water Supply Municipal
Foundation Sewer
Summary
    Location and General Information
  • HoldoverDays: 60
  • Architectural Style: 2-Storey
  • Property Type: Residential Freehold
  • Property Sub Type: Detached
  • DirectionFaces: West
  • GarageType: Attached
  • Directions: From Woodroffe, West on Knoxdale, right on Craig Henry Drive and right on Ivylea Street.
  • Taxes and HOA Information
  • Tax Year: 2025
  • Parking
  • ParkingSpaces: 3
  • Parking Total: 5
Interior and Exterior Features
    Bathrooms Information
  • WashroomsType1: 1
  • WashroomsType1Level: Main
  • WashroomsType2: 1
  • WashroomsType2Level: Second
  • WashroomsType3: 2
  • WashroomsType3Level: Second
  • WashroomsType4: 1
  • WashroomsType4Level: Lower
  • WashroomsType5: 1
  • WashroomsType5Level: Lower
  • Bedrooms Information
  • BedroomsAboveGrade: 5
  • BedroomsBelowGrade: 3
  • Interior Features
  • Fireplaces Total: 1
  • Interior Features: Carpet Free
  • Basement: Full, Finished
  • Cooling: Central Air
  • HeatSource: Gas
  • HeatType: Forced Air
  • LaundryLevel: Main Level
  • Exterior Features
  • ConstructionMaterials: Brick
  • Roof: Asphalt Shingle
  • Pool Features: None
Property
    Utilities
  • Sewer: Sewer
  • Property and Assessments
  • Foundation Details: Poured Concrete
  • Lot Information
  • Parcel Number: 046560256
  • LotSizeUnits: Feet
  • LotDepth: 124.8
  • LotWidth: 49.8
  • Others
  • PropertyFeatures: Fenced Yard, Golf, Park, Public Transit, School
Sold History
MAP & Nearby Facilities (The data is not provided by TRREB)
Map
Nearby Facilities
Public Transit ({{ nearByFacilities.transits? nearByFacilities.transits.length:0 }})
SuperMarket ({{ nearByFacilities.supermarkets? nearByFacilities.supermarkets.length:0 }})
Hospital ({{ nearByFacilities.hospitals? nearByFacilities.hospitals.length:0 }})
Other ({{ nearByFacilities.pois? nearByFacilities.pois.length:0 }})
OPEN HOUSES (The data is not provided by TRREB)
2026-02-01 02:00 PM - 04:00 PM
School Catchments
School Name Type Grades Catchment Distance
{{ item.school_type }} {{ item.school_grades }} {{ item.is_catchment? 'In Catchment': '' }} {{ item.distance }}
Mortgage Calculator (The data is not provided by TRREB)
$
$
$
%
%
Estimated Payments

$

Weekly Bi Weekly Semi Monthly Monthly

Nearby Similar Active listings
Nearby Open House listings
Nearby Price Reduced listings
Nearby Similar Listings Closed
MLS Listing Browsing History
Obtain More Info
500 word remaining