$869,900

LOT 95 HERON Street, Southwold, ON N5P 3T2

Rural Southwold, Southwold,

| | | 2,000 sq.ft. | Year Built: New |

Properties with this icon are courtesy of TRREB.

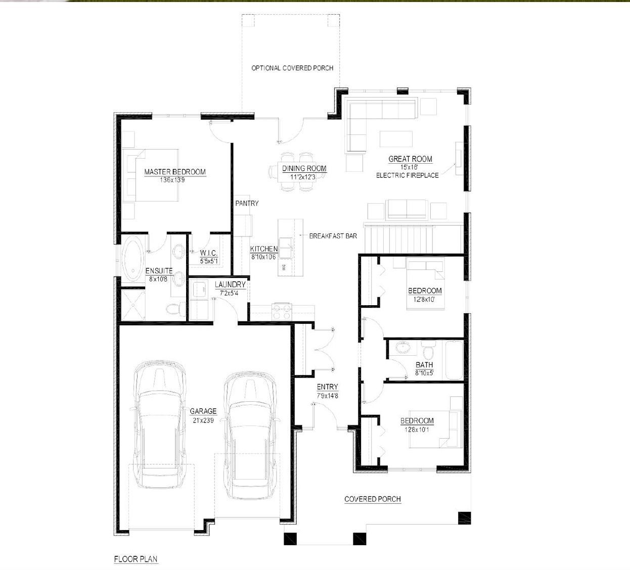
The New HST rebate has not been applied to the list price. The builder will be giving the full rebate amount to all qualified buyers after April 1 priced at $799,000 after applicable rebates - an incredible $70,000 in savings and the LOWEST price for a new build in Talbotville Meadows! Welcome to the New Haven Model, a beautifully designed one-floor bungalow offering the perfect blend of modern style, comfort, and unbeatable value. Featuring 3 spacious bedrooms and 2 full bathrooms, this home is ideal for those seeking effortless main-floor living without compromising on space or quality. Step inside to a bright, open-concept layout where the great room, kitchen, and dining area seamlessly connect-perfect for both everyday living and entertaining. The great room is warm and inviting, complete with a sleek electric fireplace, while the kitchen is thoughtfully designed with a large island, walk-in pantry, and ample cabinetry. The adjoining dining area offers plenty of space for family gatherings and features a walkout to the backyard. The primary bedroom serves as a private retreat, showcasing a generous walk-in closet and a luxurious 5-piece ensuite bath. Two additional bedrooms provide flexibility for family, guests, or a home office. Practicality meets style with a convenient laundry/mudroom located just off the garage, making daily routines a breeze. High-quality finishes throughout include stunning hardwood oak flooring, adding warmth and elegance to the home. This is your opportunity to own a brand-new bungalow in Talbotville Meadows at an unmatched price point-don't miss out on this exceptional value!

Property Info
MLS®: X12946562
Listing Courtesy of SUTTON GROUP - SELECT REALTY
Total Bedrooms 3
Total Bathrooms 2
Basement 1
Floor Space 1500-2000 sq.ft.
Lot Size 5750 sq.ft.
Style Bungalow
Last Updated 2026-04-01
Property Type House
Listed Price $869,900
Unit Pricing $435/sq.ft.
Year Built New
Rooms
More Details
Exterior Finish Stone, Hardboard
Parking Cover 2
Parking Total 4
Water Supply Municipal
Foundation Sewer
Summary
    Location and General Information
  • HoldoverDays: 30
  • Architectural Style: Bungalow
  • Property Type: Residential Freehold
  • Property Sub Type: Detached
  • DirectionFaces: North
  • GarageType: Attached
  • Directions: SUNSET RD TO TALBOTVILLE GORE - RIGHT ON OPTIMIST DR - RIGHT ON WAYSIDE LANE, LEFT ON HERON RD. LOT ON RIGHT HAND SIDE
  • Taxes and HOA Information
  • Tax Year: 2026
  • Parking
  • Parking Features: Private Double
  • ParkingSpaces: 4
  • Parking Total: 6
Interior and Exterior Features
    Bathrooms Information
  • WashroomsType1: 1
  • WashroomsType1Level: Main
  • WashroomsType2: 1
  • WashroomsType2Level: Main
  • Bedrooms Information
  • BedroomsAboveGrade: 3
  • Interior Features
  • Interior Features: Auto Garage Door Remote, Primary Bedroom - Main Floor, Sump Pump, Ventilation System
  • Basement: Full, Unfinished
  • Cooling: Central Air
  • HeatSource: Gas
  • HeatType: Forced Air
  • LaundryLevel: Main Level
  • Exterior Features
  • ConstructionMaterials: Stone, Hardboard
  • Roof: Asphalt Shingle
  • Pool Features: None
Property
    Utilities
  • Sewer: Sewer
  • Property and Assessments
  • Foundation Details: Poured Concrete
  • Lot Information
  • Parcel Number: 351560951
  • LotSizeUnits: Feet
  • LotDepth: 115
  • LotWidth: 50
  • Others
Sold History
MAP & Nearby Facilities (The data is not provided by TRREB)
Map
Nearby Facilities
Public Transit ({{ nearByFacilities.transits? nearByFacilities.transits.length:0 }})
SuperMarket ({{ nearByFacilities.supermarkets? nearByFacilities.supermarkets.length:0 }})
Hospital ({{ nearByFacilities.hospitals? nearByFacilities.hospitals.length:0 }})
Other ({{ nearByFacilities.pois? nearByFacilities.pois.length:0 }})
School Catchments
School Name Type Grades Catchment Distance
{{ item.school_type }} {{ item.school_grades }} {{ item.is_catchment? 'In Catchment': '' }} {{ item.distance }}
Mortgage Calculator (The data is not provided by TRREB)
$
$
$
%
%
Estimated Payments

$

Weekly Bi Weekly Semi Monthly Monthly

Nearby Similar Active listings
Nearby Open House listings
Nearby Price Reduced listings
Nearby Similar Listings Closed
MLS Listing Browsing History
Obtain More Info
500 word remaining