$259,900

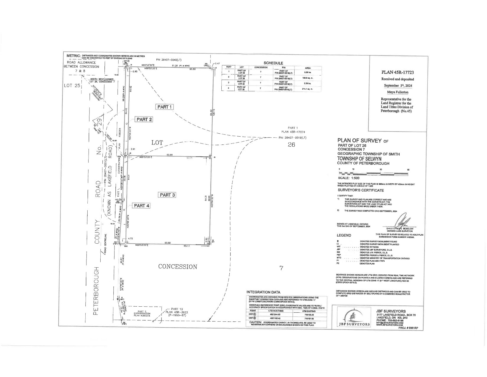
Lot 4 Lakefield Road, Selwyn, ON K9J 6X5

Selwyn, Selwyn,

| | sq.ft. |

Properties with this icon are courtesy of TRREB.

Looking for a 1 acre country lot on the edge of Lakefield. Entrance created from the road already. New well on the property. Look no further then this beautifully newly created 1 acre building lot backing out onto Ray's Creek in Lakefield. Driveway in place and well has been drilled. Great location minutes to all amenities the Village of Lakefield offers. 15 minutes north of Peterborough. Zoned residential, lot drawing showing setbacks and building area available. Natural gas on the road. Well treed at the back near the creek with no one to build behind. Walking trails and greenspace behind. Other information about building in Selwyn available.

Property Info
MLS®: X12910352
Listing Courtesy of ROYAL LEPAGE FRANK REAL ESTATE
Lot Size 42012 sq.ft.
Last Updated 2026-03-23
Property Type Land
Listed Price $259,900
More Details
Water Supply Well
Summary
    Location and General Information
  • HoldoverDays: 60
  • Property Type: Residential Freehold
  • Property Sub Type: Vacant Land
  • DirectionFaces: East
  • Directions: Water St N from Peterborough turns into Lakefield Rd. Lot is situated between #3220 and #3188 County Rd 2 (Lakefield Rd)
  • Taxes and HOA Information
  • Tax Year: 2026
  • Parking
  • Parking Features: Private
Interior and Exterior Features
    Interior Features
    Exterior Features
  • Exterior Features: Backs On Green Belt
Property
    Utilities
  • Water Source: Drilled Well
  • Property and Assessments
  • Topography: Level, Partially Cleared, Wooded/Treed
  • Lot Information
  • Parcel Number: 284070527
  • LotSizeUnits: Feet
  • LotDepth: 199.25
  • LotWidth: 210.85
  • Others
  • PropertyFeatures: Greenbelt/Conservation, River/Stream, School Bus Route, Wooded/Treed
MAP & Nearby Facilities (The data is not provided by TRREB)
Map
Nearby Facilities
Public Transit ({{ nearByFacilities.transits? nearByFacilities.transits.length:0 }})
SuperMarket ({{ nearByFacilities.supermarkets? nearByFacilities.supermarkets.length:0 }})
Hospital ({{ nearByFacilities.hospitals? nearByFacilities.hospitals.length:0 }})
Other ({{ nearByFacilities.pois? nearByFacilities.pois.length:0 }})
School Catchments
School Name Type Grades Catchment Distance
{{ item.school_type }} {{ item.school_grades }} {{ item.is_catchment? 'In Catchment': '' }} {{ item.distance }}
Mortgage Calculator (The data is not provided by TRREB)
$
$
$
%
%
Estimated Payments

$

Weekly Bi Weekly Semi Monthly Monthly

Nearby Similar Active listings
Nearby Open House listings
Nearby Price Reduced listings
Nearby Similar Listings Closed
MLS Listing Browsing History
Obtain More Info
500 word remaining