$649,900

222 Fall Fair Way 35, Hamilton, ON L0R 1C0

Binbrook, Hamilton,

| | | 1,500 sq.ft. |

Properties with this icon are courtesy of TRREB.

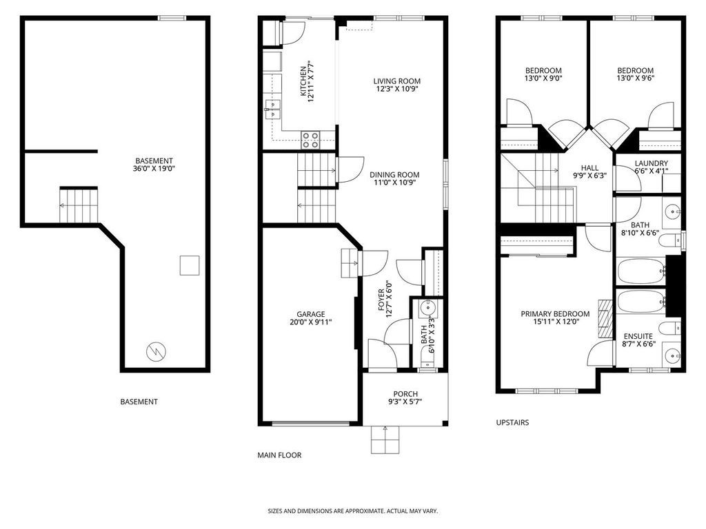
Welcome to this bright and stylish 'Rodeo' model by Branthaven. This 3-bedroom, 2.5-bathroom end-unit townhome features a bright and airy open-concept main floor and is designed for easy living and entertaining. The kitchen offers plenty of space and storage, and beautiful sightlines, with a sliding door that opens to one of the larger backyards in the complex. The backyard features turf and patio stones for a lovely seating area where you can sit and enjoy the charming pond feature. Fire up the BBQ with your natural gas hookup and enjoy effortless outdoor living! Upstairs, you'll love the convenience of second-floor laundry and 3 spacious bedrooms. The large primary suite impresses with a wall of closets and a 4-piece ensuite bath. The full unfinished basement offers excellent storage or the potential to create even more living space to suit your needs. Complete with an attached garage with home access, recent updates: new carpeting on the stairs and upper level (2025), A/C (2020), and newer appliances: dishwasher, washer, and dryer (2023), this home is move-in ready and made for modern life. Bright, fresh, and beautifully cared for; this one truly feels like home.

Property Info
MLS®: X12640664
Listing Courtesy of REVEL REALTY INC.
Total Bedrooms 3
Total Bathrooms 3
Basement 1
Floor Space 1100-1500 sq.ft.
Lot Size 622 sq.ft.
Style 2-Storey
Last Updated 2025-12-18
Property Type Townhouse
Listed Price $649,900
Unit Pricing $433/sq.ft.
Tax Estimate $3,577/Year
Rooms
More Details
Exterior Finish Brick, Vinyl Siding
Parking Cover 1
Parking Total 1
Water Supply Municipal
Foundation Sewer
Summary
    Location and General Information
  • HoldoverDays: 90
  • Architectural Style: 2-Storey
  • Property Type: Residential Freehold
  • Property Sub Type: Att/Row/Townhouse
  • DirectionFaces: South
  • GarageType: Attached
  • Directions: There are two entrances into 222 Fall Fair, Unit 35 is located closer to the traffic circle at Fall Fair and Pumpkin pass on the south side across from visitor parking
  • Taxes and HOA Information
  • Tax Year: 2025
  • Parking
  • ParkingSpaces: 1
  • Parking Total: 2
Interior and Exterior Features
    Bathrooms Information
  • WashroomsType1: 1
  • WashroomsType1Level: Main
  • WashroomsType2: 1
  • WashroomsType2Level: Second
  • WashroomsType3: 1
  • WashroomsType3Level: Second
  • Bedrooms Information
  • BedroomsAboveGrade: 3
  • Interior Features
  • Interior Features: Auto Garage Door Remote, Water Heater Owned, Central Vacuum
  • Basement: Full, Unfinished
  • Cooling: Central Air
  • HeatSource: Gas
  • HeatType: Forced Air
  • Exterior Features
  • ConstructionMaterials: Brick, Vinyl Siding
  • Roof: Asphalt Shingle
  • Pool Features: None
Property
    Utilities
  • Sewer: Sewer
  • Property and Assessments
  • Foundation Details: Poured Concrete
  • Lot Information
  • Parcel Number: 173842264
  • LotSizeUnits: Metres
  • LotDepth: 84.02
  • LotWidth: 7.4
  • Others
  • PropertyFeatures: Cul de Sac/Dead End, Place Of Worship, School, Park
Sold History
MAP & Nearby Facilities (The data is not provided by TRREB)
Map
Nearby Facilities
Public Transit ({{ nearByFacilities.transits? nearByFacilities.transits.length:0 }})
SuperMarket ({{ nearByFacilities.supermarkets? nearByFacilities.supermarkets.length:0 }})
Hospital ({{ nearByFacilities.hospitals? nearByFacilities.hospitals.length:0 }})
Other ({{ nearByFacilities.pois? nearByFacilities.pois.length:0 }})
School Catchments
School Name Type Grades Catchment Distance
{{ item.school_type }} {{ item.school_grades }} {{ item.is_catchment? 'In Catchment': '' }} {{ item.distance }}
Mortgage Calculator (The data is not provided by TRREB)
$
$
$
%
%
Estimated Payments

$

Weekly Bi Weekly Semi Monthly Monthly

Nearby Similar Active listings
Nearby Open House listings
Nearby Price Reduced listings
Nearby Similar Listings Closed
MLS Listing Browsing History
Obtain More Info
500 word remaining